Revit for Interiors

Project Description: This individual project allowed us to redesign and repurpose the interior of an existing building as a new space for a commercial client of my choosing.

Key Requirements: Building code, ADA requirements, required program spaces, and interior elements

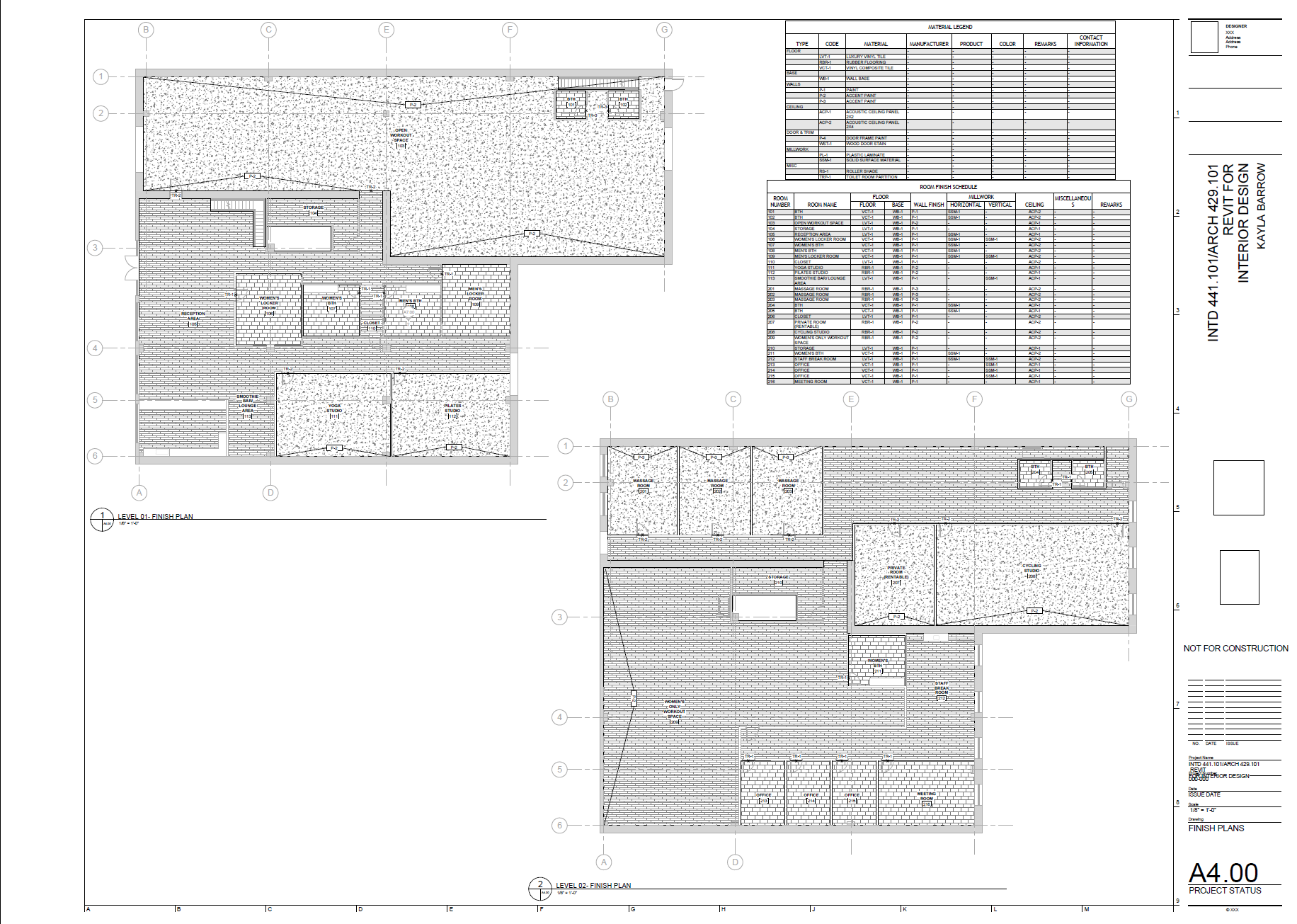
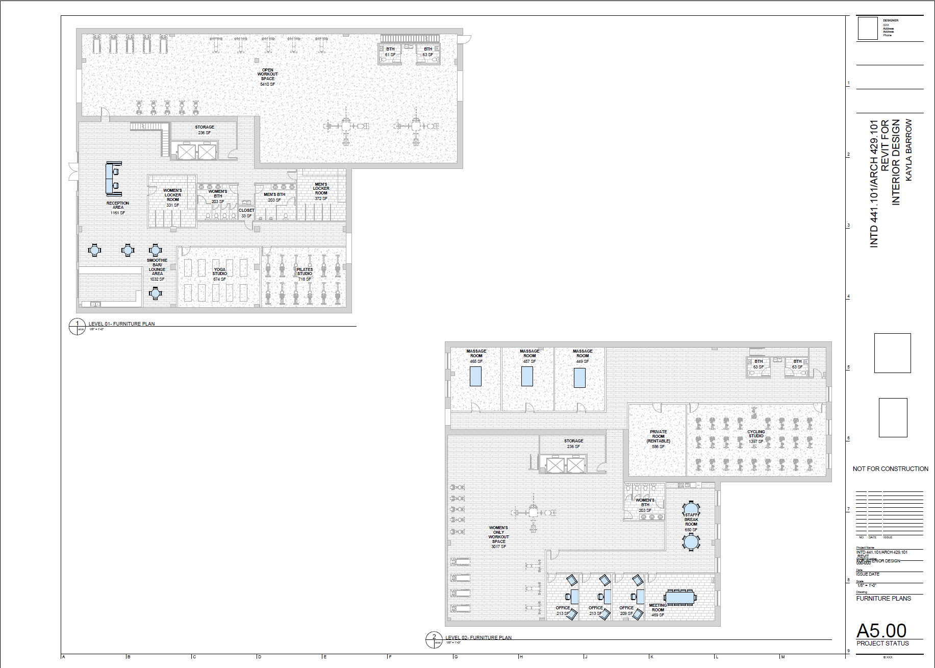
Design Vision & Process: With a continuing focus on wellness my goal was to create an accessible and inviting wellness center.

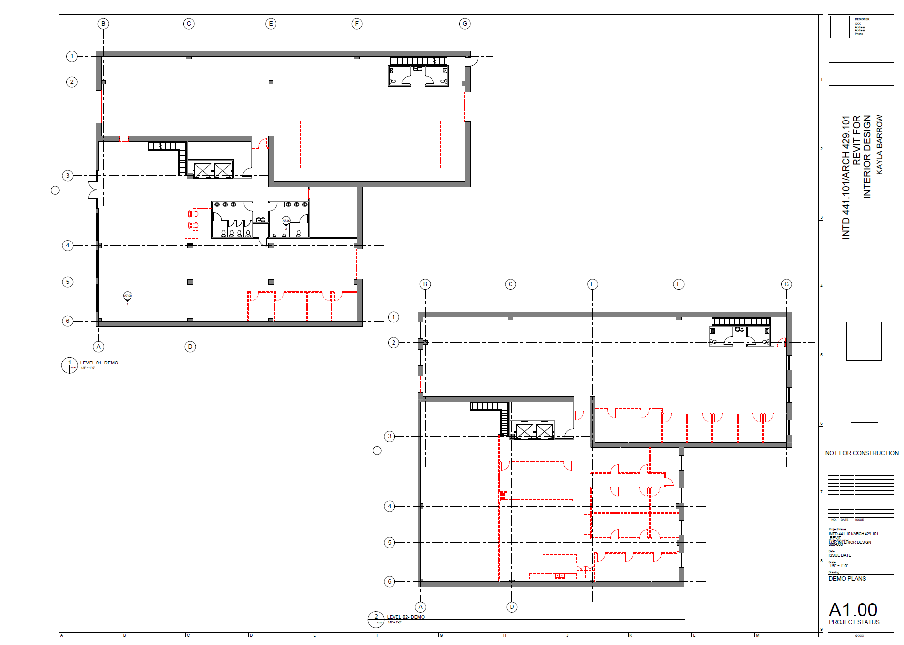
    • Demolition and Phasing

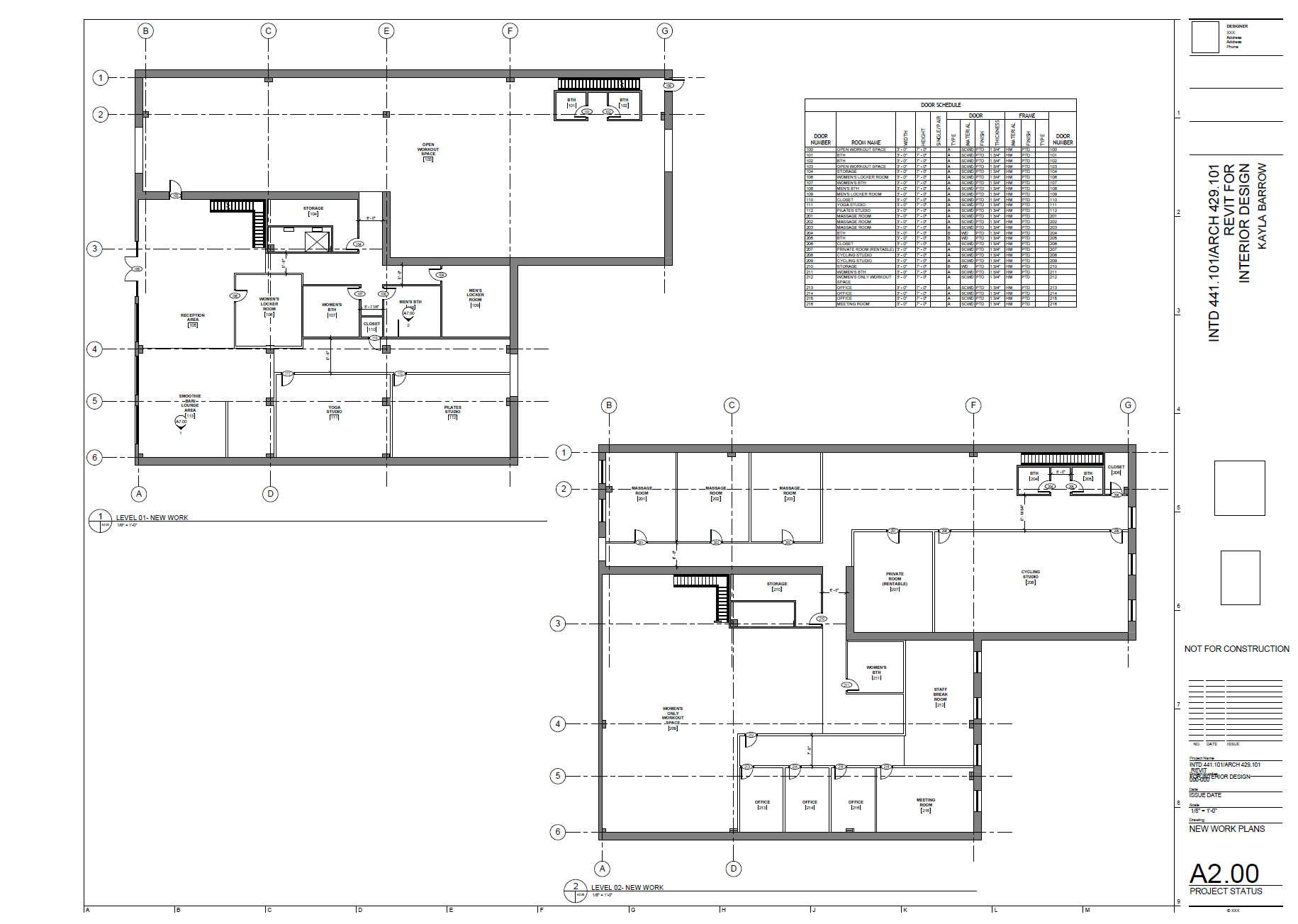
    • Building Code & ADA Requirements

    • Construction Documents

    • Designing interior spaces

    • Building Layout

    • Revit

    • Design Iterations

    • Time Management

Previous
Previous

Urban Design -->

Next
Next

Disney City Transportation Competition -->